Although the task is daunting, Seguro y Sano-Sana y Protegida realizes the urgency of protecting women and children from domestic violence.
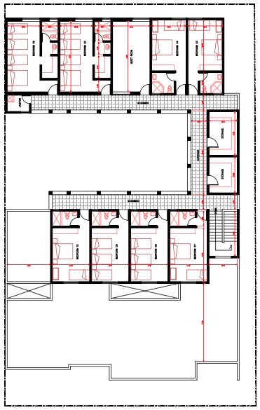
Please view the Architectural Design to see that 10 women and their children will occupy the shelter and have comprehensive services.

Included:
- Enclosed garage so that when a woman arrives, she will be able to leave the vehicle in the safety of the enclosed garage. No one will know she is here.
- Intake with the Administrator to obtain all data and inform her of the accommodations, length of stay, and services. All data held in this office.
- Nurse Station will hold all medications to be distributed and provide on-going medical services to women and children.
- Adult Psychologist to assist women with their mental health including understanding the how rebuild self esteem.
- Child Psychologist to help children process the abuse they encountered and how to maintain healthy habits.
- Social Worker to assist women with transition from Shelter to housing and job.
- Attorney will obtain restraining orders and divorce from abuser
- School to help children maintain their grade level.
- Dining and Education room for inhabitants to eat, converse, and attend educational seminars.
- 10 bedrooms with individual bath areas for small or large families, plus one bedroom available for a disabled inhabitant.
- Kitchen and pantry.
- Ceramic studio and kiln to provide job or creative training.
- Laundry for each family to do their own laundry.
- Playground and outdoor lounging area.
Current Status:
Your Board of Directors and our Construction Manager have been busy obtaining all permits and surveys to begin construction.
- Land Use Feasibility
- Risk Diagnosis
- Land Use License
- CEA Feasibility
- Limit
- Alignment and Official Number
- Hydrological Study
- Public Registry of Commerce
- Soil Mechanics Study
- Survey Service

We continue to pursue all legal requirements for a Civil Association and the operation of a Shelter.
